|
主要性能参数
| 适用介质 |
含尘固体颗粒或粉料 |
电源电压 |
380V50Hz |
| 适用温度 |
≤350℃ |
调节特性 |
常规情况二位开关式 |
| 电液推杆型号 |
DYT系列 |
特殊情况4-20mA电信号 |
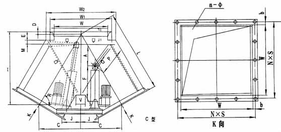
1、DSF-□A(B)□型电液动三通分料器

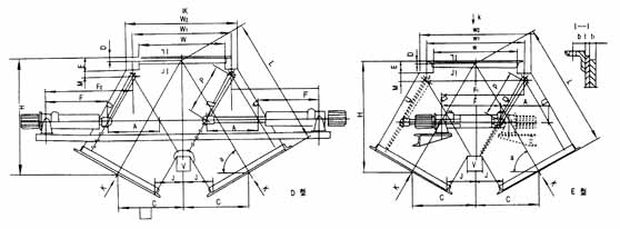
2.DSF-□C(D、E)□型电液动三通分料器


3.DSF-□F□型电液动三通分料器

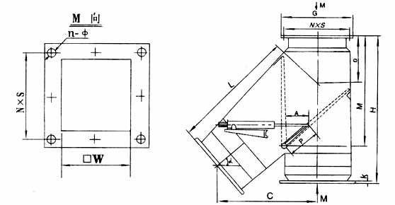
4.DCSF-□-□型电液动三通分料器
产品特点
DCSF型电液动船式三通分料器,采用船式溜槽结构,使物料更加畅通;增装导向辊,保持较小的负角间隙,有效的防止物料进入间隙内;进煤有“漏斗”状护架,使物料直接进入船体内。由于采用拼装结构,维修也比较方便。

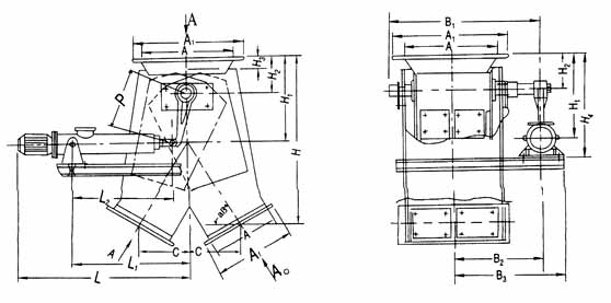
5.DBSF-□-□型电液动三通分料器
产品特点
DBSF型摆动三通分料器采用内套筒换向结构,使物料与三通壳休分离, 这样就不会在壳壁上积料或结疤、不存在卡住套筒转动不灵活的问题,也不会出现漏料、混料现象。 操作灵活、省力。
6.D4F-□-□型电液动四通分料器

|